Адрес: МО, Одинцовский
городской округ,
Малые Вяземы, БЦ Madex
+7 (916) 667-80-67
Ежедневно с 9.00 до 21.00

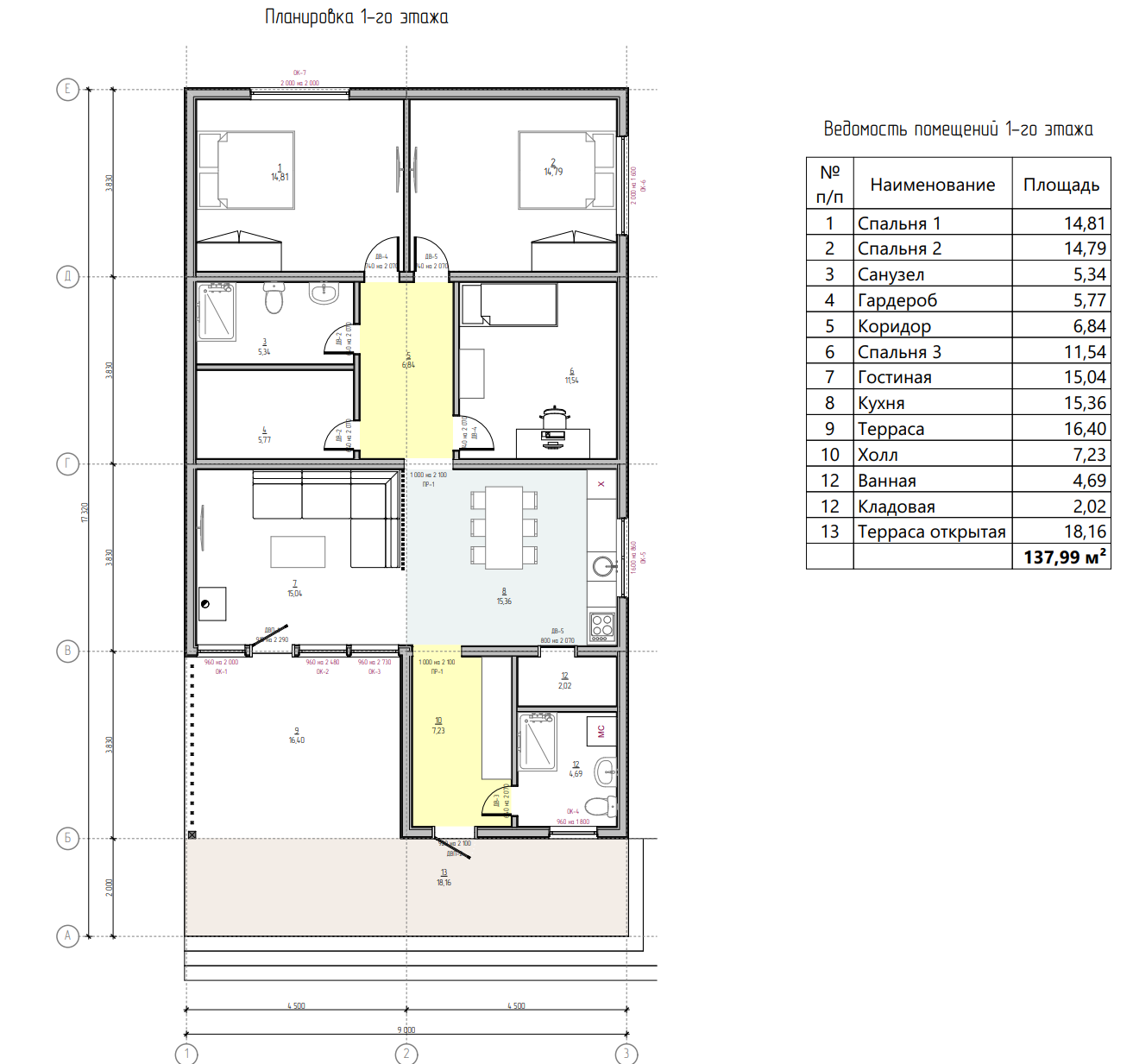
МОДУЛЬНО-КАРКАСНЫЙ ДОМ WOODHOUSE 120 PRO

Основные характеристики:

  • Жилая площадь:

    120 м²

  • Этажность:

    1 этаж

9 500 000 ₽

11 500 000 ₽

MAX

MAX - означает, что в комплектации дома будет: кухня, бытовая техника, мебель, печь-камин.

Проект полностью закончен в комплектации "Престиж", которая подразумевает условие изготовления "Под ключ" по принципу "Заезжай и живи". Современная технология строительства дома имеет современную архитектуру с панорамным остеклением и энергоэффективность, что позволяет сделать дом очень теплым, что, несомненно, несет за собой низкие затраты на отопление такого дома при сравнении с домами, изготовленными из бруса или бетона. По такому принципу вы сможете отказаться от установки газового оборудования. Дом устанавливается по ГОСТ на свайно-забивной фундамент. Сваи забиваются на глубину от 2,5 до 3,0 метров, что ниже глубины промерзания грунта.

Наполнение Модульно-каркасного дома WOODHOUSE 120 PRO

Включено в стоимость
  • Готовность

    Полностью готовый дом в чистовой отделке снаружи и внутри

  • Утепление

    Утепление по периметру, толщина стен 150 мм, пол и кровля 200 мм

  • Коммуникации

    Все коммуникации: электрическая разводка, водоснабжение, канализация, рекуперация и вентиляция внутри дома.

  • Окна

    Окна ПВХ REHAU, двухкамерный стеклопакет, пяти-камерный профиль

  • Двери

    Двери: входные и межкомнатные

  • Система отопления

    Водоподготовка системы отопления с выводом для электрического котла

  • Ламинат

    Ламинат 12мм, класс износостойкости 33

  • Электрика

    Светильники внешние и внутренние, розетки, выключатели

  • Инженерные системы

    Подключение к внешним инженерным системам

  • Сан фаянс

    Сан фаянс в санузлах: раковины, тумбы под раковины, унитазы, ванна или душевая кабина, бойлер на 150 л

  • Отопление

    Отопление: конвекторы с терморегуляторами

  • Покраска

    Черновая/чистовая покраска отделочных материалов составами и пропитками мировых брендов

  • Теплый пол

    Система инфракрасного теплого пола во всех санузлах

  • Подготовка дома

    Сборка и подготовка дома

  • Доставка

    Доставка на участок до 100км от производства г. Нахабино МО

  • Фундамент

    Установка свайно-забивного фундамента (с использованием обвязочного бруса)

Фотогалерея модульного дома 120 м²